067 137 96 24, 077 555 40 55
Житлова нерухомість
дев"ятиповерховий будинок
вул.Карла Мікльоша № 1-В
24 - однокімнатних
16 - двокімнатних
ОДНОКІМНАТНІ КВАРТИРИ
(друга черга)

від 39,5 до 47,5 кв.м

№ кв Поверх Заг.площа Жит.площа Статус
3247.1618.37вільна
8347.1618.37вільна
13447.1618.37продано
18547.1618.37вільна

№ кв Поверх Заг.площа Жит.площа Статус
23641.3114.33продано
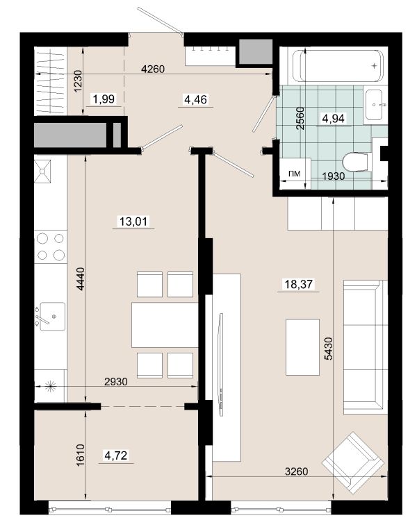
Однокімнатна 47.16 кв.м
Однокімнатна 47.49 кв.м
Однокімнатна 47.51 кв.м
Однокімнатна 41.31 кв.м /з терасою/
Однокімнатна 41.64 кв.м /з терасою/
Однокімнатна 41.88 кв.м /з терасою/
Однокімнатна 39.46 кв.м
Однокімнатна 39.79 кв.м
Однокімнатна 40.02 кв.м

№ кв Поверх Заг.площа Жит.площа Статус
4247.5118.69вільна
9347.5118.69продано
14447.5118.69продано
19547.5118.69продано

№ кв Поверх Заг.площа Жит.площа Статус
2247.4918.37продано
7347.4918.37резерв
12447.4918.37продано
17547.4918.37резерв

№ кв Поверх Заг.площа Жит.площа Статус
22641.6414.33продано

№ кв Поверх Заг.площа Жит.площа Статус
24641.8814.65продано

№ кв Поверх Заг.площа Жит.площа Статус
27739.7914.33продано
32839.7914.33продано
37939.7914.33вільна

№ кв Поверх Заг.площа Жит.площа Статус
28739.4614.33продано
33839.4614.33продано
38939.4614.33вільна

№ кв Поверх Заг.площа Жит.площа Статус
29740.0214.65продано
34840.0214.65продано
39940.0214.65вільна
1 поверх (комерціяі) 2  поверх 3  поверх 4  поверх 5  поверх 6  поверх 7  поверх 8  поверх 9  поверх
Поповерховий план розміщення квартир
Miha's toys Co
© Copyright 2013 - All Rights Reserved